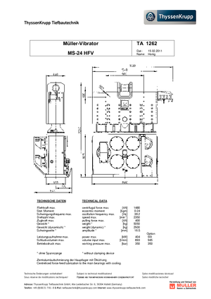
Fiche technique - Müller MS 24 HFV

modèle 2007-2010 Europe DE, EN

Cette fiche technique (PDF) sera envoyée dans votre boîte de réception après que vous ayez fourni votre adresse e-mail.

  • Fiche technique du constructeur
  • Plus d'information
  • Spécification détaillée

*Modalités d’utilisation

The privacy policy of the company LECTURA GmbH applies, which also contains further information about possibilities for correction, deletion and blocking of my data.

Pilonneuses vibrants Müller MS 24 HFV



Afficher spécification détaillée