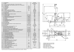
Fiche technique - Montini Bingo Zinc 164

modèle 2011-2016 Europe EN

Cette fiche technique (PDF) sera envoyée dans votre boîte de réception après que vous ayez fourni votre adresse e-mail.

  • Fiche technique du constructeur
  • Plus d'information
  • Spécification détaillée

*Modalités d’utilisation

The privacy policy of the company LECTURA GmbH applies, which also contains further information about possibilities for correction, deletion and blocking of my data.

Chariots élevateurs frontaux  electriques Montini Bingo Zinc 164



Afficher spécification détaillée